


974 700 ₽/м²
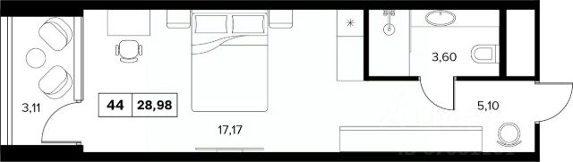
В продаже номер площадью 28.98 м² на 6 этаже в премиальном экокомплексе Белые Ночи. Проект "Белые ночи" предлагает человеку образ жизни, в котором сама окружающая среда поддерживает долголетие. Всё устроено так, чтобы телу было легко включаться в ритм: мягкий климат, чистый воздух, маршруты терренкуров, архитектура без перегруженности, сбалансированное питание и световой режим. Внутреннее пространство комплекса - Wellness-пространств - Клинико-диагностический центр LeePrime Medical - Продуктивная среда - Пространство для детского счастья - Ресторан - Собственный пляж с причалом - Паркинг Срок сдачи - 2030 год. "Белые Ночи" — это воплощение изысканного вкуса и безупречного комфорта. Пространство было создано по эксклюзивному авторскому дизайн-проекту, где каждая деталь интерьера и тщательно подобранная мебель подчеркивают уникальную эстетику. Для вашего удобства номера оснащены премиальной бытовой техникой, а также передовыми системами безопасности и климат-контроля, создающими атмосферу полного спокойствия и уюта. Внимание к деталям — вот что отличает эко-комплекс Белые Ночи.




















































































































